• HOME
  • SALA MUSEALE
  • CHI SIAMO
    • CHI SIAMO
    • GUASTATORI
    • REGOLAMENTO
    • ISCRIVITI
  • LA PAGINA DELLA STORIA
    • LA PAGINA DELLA STORIA
    • LE ORIGINI
    • LE GUERRE DEL '900
    • LE SCUOLE
  • TRADIZIONI
    • TRADIZIONI
    • REPARTI
    • PERSONAGGI
  • CHI E COSA
    • RICORDI DEGLI INCONTRI PASSATI
    • GUASTATORI IN AZIONE
    • FRATELLI IN ARMY
    • I SOLDATI NON MUOIONO
    • EL ALAMEIN 80° ANNIVERSARIO
    • RADUNI DAL 1959 AL 1998
  • NEWSLETTER
  • AREA TECNICA
    • AREA TECNICA
    • WEBINAR
    • WEBINAR SVOLTI
  • 50° TERREMOTO FVG
    • Miglioramento Immagini
  • CONTATTI
  • GADGET
  • QUOTE&DONAZIONI
  • BEST SAPPER COMPETITION
    • BEST SAPPER COMPETITION
  • DATI ASSOCIATIVI

Gruppo Nazionale Guastatori

gruppoguastatori 

Informativa sulla PrivacyInformativa sui Cookie

e6e1dfc5-c981-45f1-9fdc-bb755b51020e
4be6cd04-63e3-41ba-9498-cab7789e5ead

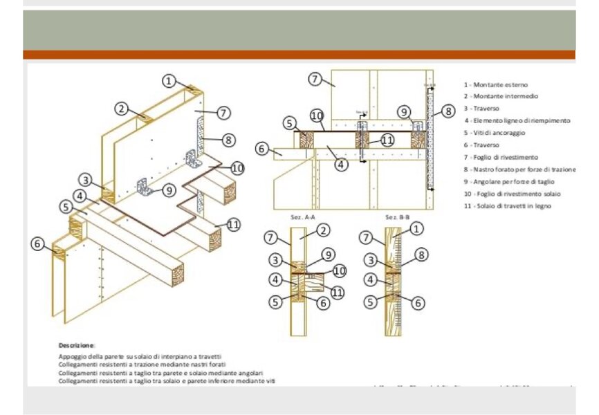
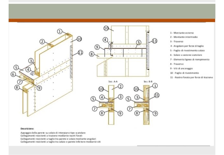
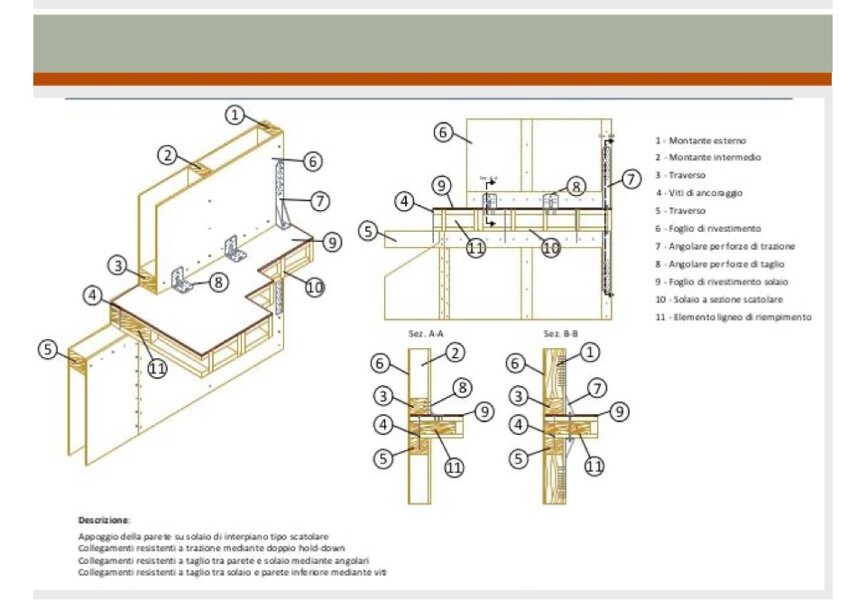
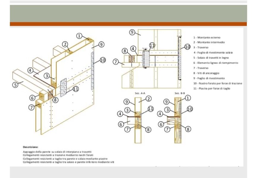
Costruzioni Verticali

123456 Cemento armato7891011121314151617 Sistemi combinati calcestruzzo - legno18 Costruzioni in legno19202122232425262728293031323334353647 Costruzioni in acciaio38394041424344454647484950515253
eafbea95-006d-4b56-9826-fabda5478732
123456789101112131415161718192021222324
1234567891011121314151617181920212223242526272829303132333435363738394041424344454647484950515253545556575859606162636465666768697071727374
  • Area tecnica

Gruppo Nazionale Guastatori

Informativa sulla PrivacyInformativa sui Cookie